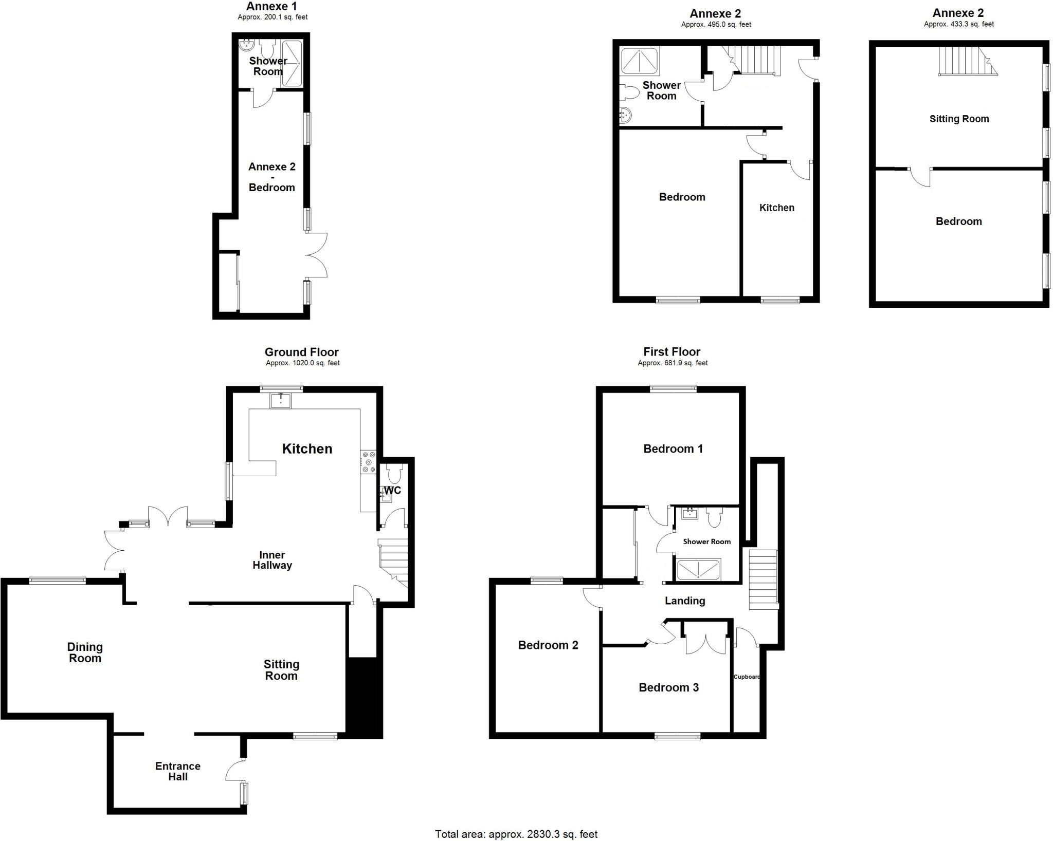
The property offers an entrance hall with inglenook and bread oven, wealth of exposed beams and timbers, open plan sitting/dining room plus superb kitchen with island unit and doors out to the grounds and a cloakroom. On the first floor is the main bedroom with a roll top bath; a family shower room with a walk-in shower and two further double bedrooms.
The two bedroom detached annexe has an entrance area, kitchen and bedrom with a newly fitted shower room. On the first floor, there is a sitting room and a further bedroom. Further down in the garden is a studio apartment with shower room (again ideal home office or let).
The property offers ample parking, cobbled driveway and beautiful lawned gardens. A type of property that must be seen to fully appreciate what is on offer.


Then all you need to do is get in touch to ask any questions or arrange a viewing. We’d love to show you around! Call on 01279 501 500 or press the button below