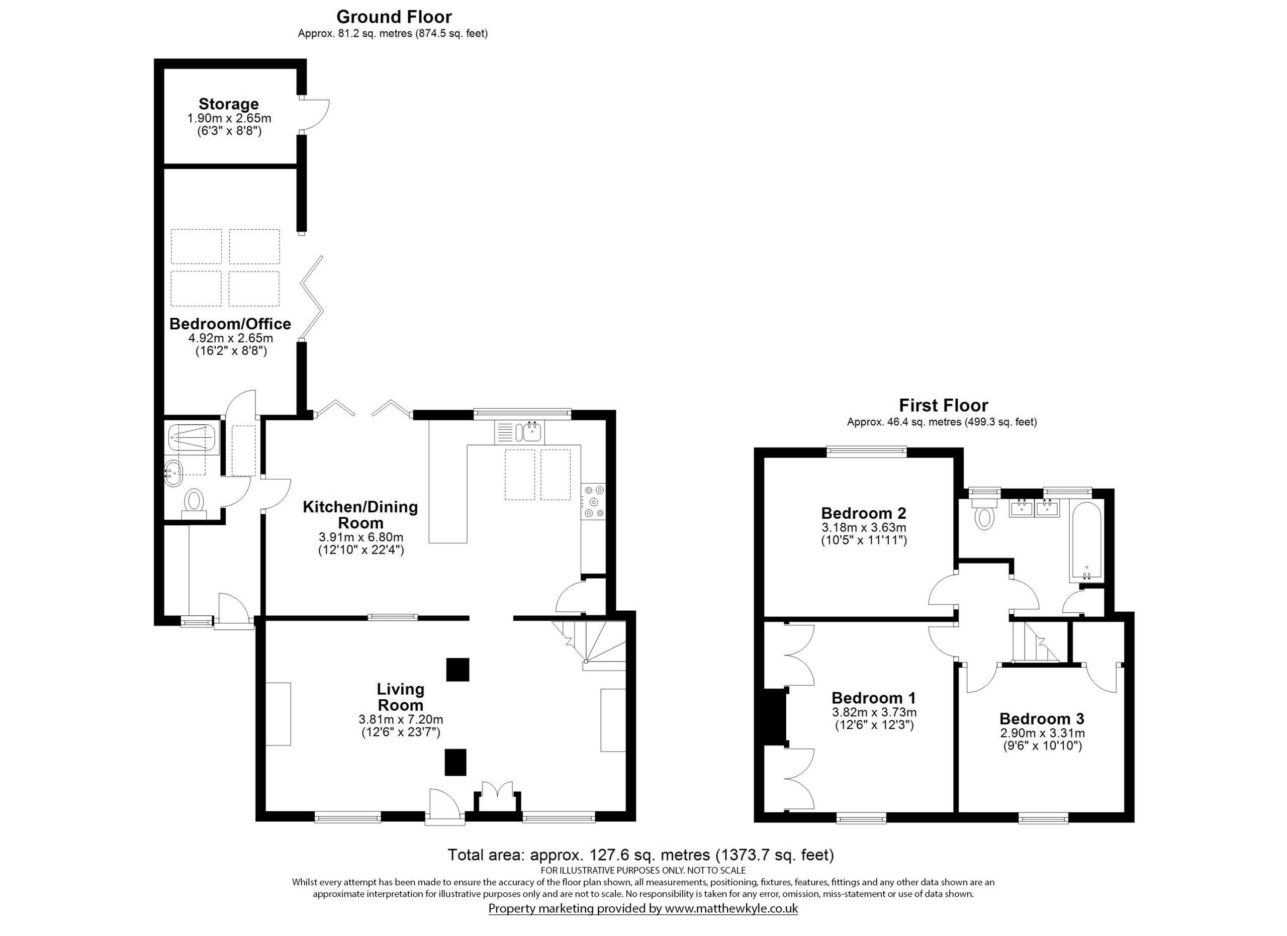
The internal accommodation comprises; entrance door which leads into the double fronted living room with feature fireplaces. An open plan kitchen/dining room which benefits from a breakfast bar, integral appliances and under floor heating. Leading from the kitchen there is a utility room, wet room and ground floor bedroom/office which boast a vaulted ceiling. Bifold doors lead from both the dining room and bedroom/office into the garden. Three double bedrooms are located on the first floor along with the refitted family bathroom which has his and hers sink units and underfloor heating. The newly fitted combi boiler is located in the bathroom.
To the rear of the property there is a patio entertainment area and the garden is mainly laid to artificial grass with established planting and wall surround. Accessed from the garden is a purpose built garden storage shed, which is equipped with power.
There is a side access door to the property and off road parking to the front.


Then all you need to do is get in touch to ask any questions or arrange a viewing. We’d love to show you around! Call on 01279 501 500 or press the button below