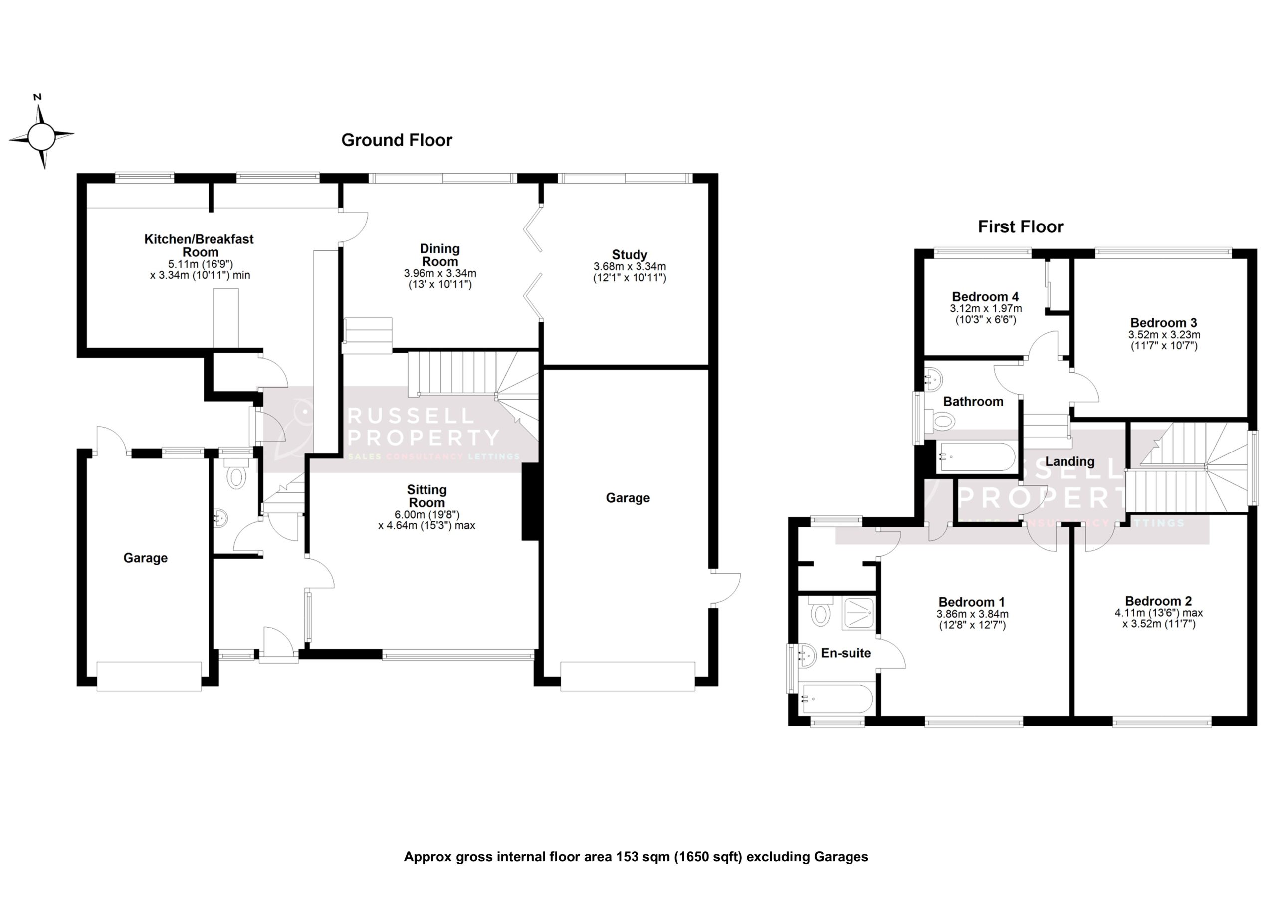
Internally, the property offers spacious accommodation, which offers a great opportunity for refurbishment and scope to extend (subject to planning). Arranged over two floors, in brief the accommodation comprises; entrance hall with cloakroom; the sitting room with feature fireplace also has stairs, that lead to the first floor; the dining room and study to the rear of the property both enjoy garden views and patio doors to the garden. The kitchen/breakfast room offers a range of base and eye level units and door to the garden.
Stairs to the first floor accesses the family bathroom and four bedrooms. The principal bedroom has a walk-in wardrobe and a four piece ensuite bathroom.
Gardens to the rear are laid to lawn with a patio entertainment area in fence surround. Gated side access leads to the front of the property, with a lawned garden and two separate driveways - each leading to a single garage.


Then all you need to do is get in touch to ask any questions or arrange a viewing. We’d love to show you around! Call on 01279 501 500 or press the button below