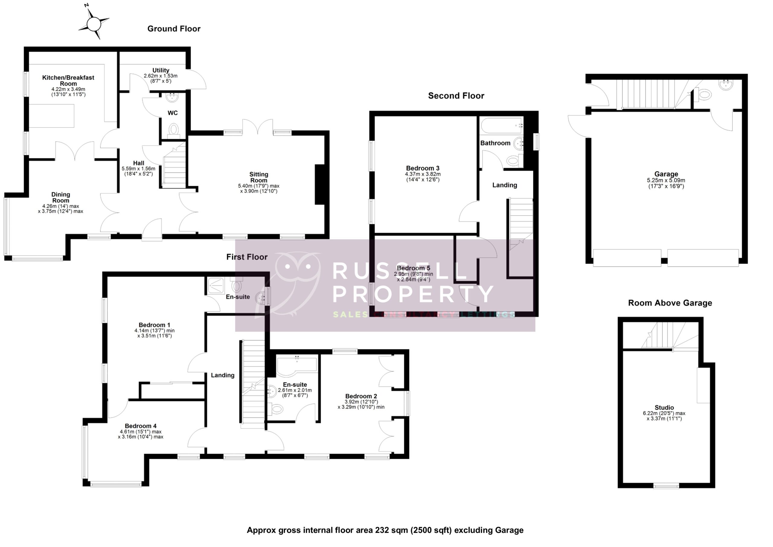
Internally, the accommodation is arranged over three floors and in brief comprises; spacious entrance hallway with understairs storage, cloakroom and utility room. The dining room to the left and sitting room to the right of the hall are both bright and benefit from dual aspect views. The sitting room enjoys garden views and a feature fireplace. The kitchen is fully fitted with a range of base and eye level units, built in appliances and is accessed from the dining room and hall.
Stairs ascend to the first floor landing and access to three double bedrooms. The principal bedroom benefits from built in wardrobes and ensuite shower. Bedroom four is linked via a doorway which could be utilised as a dressing room/study with further access from the landing. The second bedroom also benefits from built in wardrobes and an ensuite bathroom. Two further bedrooms and a three piece family bathroom are located on the second floor.
Externally the property enjoys a secluded garden which is mainly laid to lawn with established borders. A personal door accesses a double garage which benefits from a downstairs wc and stairs up to the studio which can be utilised as a home office/annex/playroom. To the rear the property benefits from off street parking and further access to the double garage.


Then all you need to do is get in touch to ask any questions or arrange a viewing. We’d love to show you around! Call on 01279 501 500 or press the button below