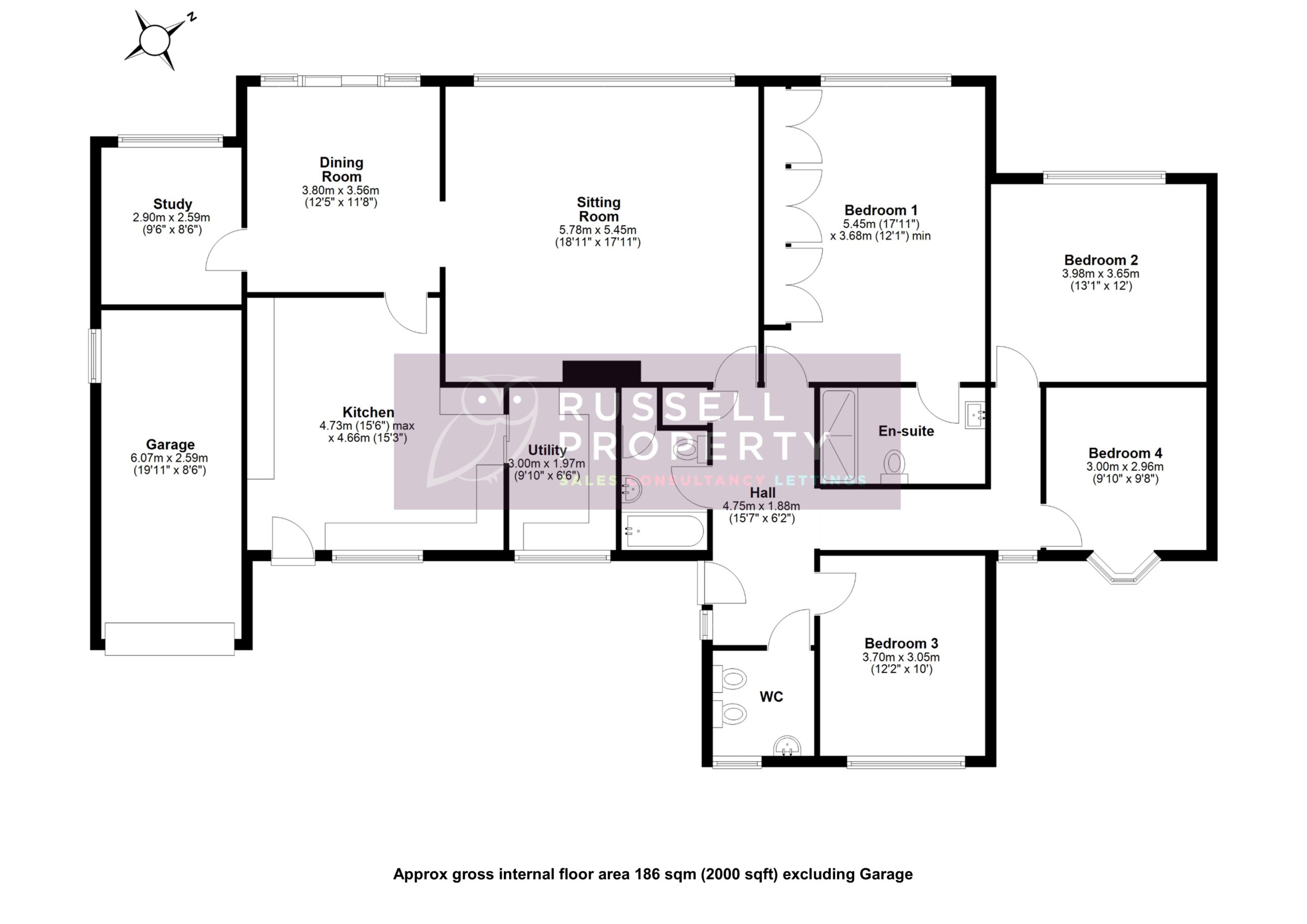
Tucked away in a quiet cul-de-sac, this established bungalow offers generous single storey accommodation which in brief comprises; entrance hall with wc. Immediately to the right of the hallway is the family bathroom and four bedrooms, two with views to the front and two with garden/landscape views. The principal bedroom benefits from built in wardrobes and an ensuite shower room.
The large sitting room sits at the rear of the property, with a feature fireplace with gas fire and a picture window with countryside views. The dining room with patio doors to the garden and an office also sit to the rear with the kitchen/breakfast room accessed from the dining room. The kitchen is fitted with a range of base and eye level units, appliances and access to a separate utility room; along with a door to the front of the property.
To the rear of the property, the south west facing gardens are established; laid to lawn with a raised patio entertainment area, vegetable plot and planted borders within a fence surround. A garden room sits to the end of the garden with views over surrounding farmland. Gated side access leads to the front of the property; driveway parking and a single garage.


Then all you need to do is get in touch to ask any questions or arrange a viewing. We’d love to show you around! Call on 01279 501 500 or press the button below